
MOSYS →
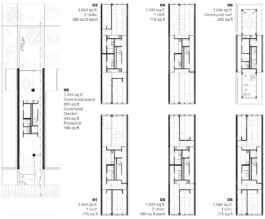
MOSYS (Modular Systems) proposes a model for the systematic development of numerous micro-vacant lots in the New York City. MOSYS makes maximum systematization possible and still creates individual architectural solutions for different properties and contexts. The building system consists of only two elements: a standard module and a flex module. With at least one standard module in the middle of each property and as many additional flex modules as necessary, it is possible to plan almost any property efficiently and functionally. The prefabrication of the modules means that the construction time is very short, the cost risk is extremely low and the execution quality is above average.
Location: New York City
Status: Competition
Year: 2019
Program: Housing
Role: Design
Team: Hans von Bülow, Julian Meisen, Cornelius Voss






MOSYS
MOSYS (Modular Systems) proposes a model for the systematic development of numerous micro-vacant lots in the New York City. MOSYS makes maximum systematization possible and still creates individual architectural solutions for different properties and contexts. The building system consists of only two elements: a standard module and a flex module. With at least one standard module in the middle of each property and as many additional flex modules as necessary, it is possible to plan almost any property efficiently and functionally. The prefabrication of the modules means that the construction time is very short, the cost risk is extremely low and the execution quality is above average.
Location: New York City
Status: Competition
Year: 2019
Program: Housing
Role: Design
Team: Hans von Bülow, Julian Meisen, Cornelius Voss






